The Eden Leisure Group, owned by Ian and Kevin De Cesare, has been granted a permit to build two additional floors on a new hotel to be built in the centre of Paceville, despite a breach of the planning policy.
With the full backing of the Malta Tourism Authority (MTA), the Planning Authority (PA) allowed Eden Leisure Group to benefit from a policy permitting an additional two floors for hotels to accommodate tourists, except in this case they are planned for use as offices – in a space far larger than the administrative staff registered with the company.
The permit, which has so far gone unnoticed, is being described by industry sources as “scandalous”.
“What the PA did is unprecedented and could be struck down by a court of law, if challenged,” industry sources told The Shift.
“The Height Limitation Policy used to justify this permit does not allow any other uses, apart from hotels. The MTA and the PA going out of their way to accommodate the developers while breaching their own established policy is inexplicable,” an architect told The Shift.

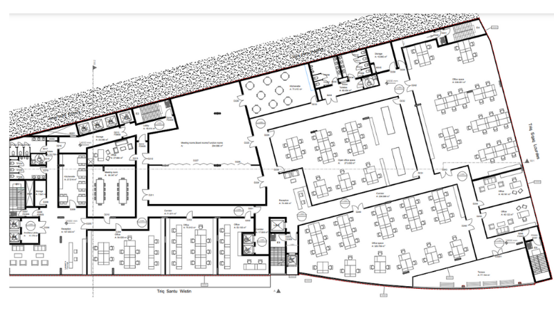
13-storey hotel to replace Eden Cinemas
In November 2019, the Eden Leisure group applied for a permit to demolish their cinemas and bowling alley in Paceville and build a 13-storey mixed development including a new 338-bed, four-star hotel and some 10,000 square metres of office and retail space.
The PA directorate immediately pointed out that “the proposal is not in line with the criteria established in policy document Height Limitation Adjustment Policy for Hotels, since the scale of the office component is excessive when considering that the hotel’s policy is being applied to increase the built volume of the hotel”.
Yet despite the strong internal objections from PA officials, nothing was changed from the developer’s side. Instead, the MTA, as a crucial consultant in such applications, gave its go-ahead by changing its own interpretation of the policy.
In a letter signed by MTA Chairman Gavin Gulia and Director Kevin Fsadni, the MTA informed the PA that since the office component was to be used for the management of Eden’s three hotels in the area, according to Eden’s architect Pierre Farrugia, then the two floors of office space were to be considered as part of the hotel and used for their administration.
Following that submission, the PA agreed with the MTA and issued the permit.

More office space than they need
Investigations by The Shift show that, according to the same plans approved by the PA, the office floors allowed to be built as part of the hotel development are much bigger than the required space needed by the Eden Leisure Group to operate its three hotels in the area.
While the plans show that the two office floors will have more than 280 desk work stations, the Eden Group declared in its last published accounts (2020) that it only employs 50 workers in its administration and management of all its group entities, which also include a number of other companies not related to its hotels.
Industry sources said this means that the office space approved as part of the hotel development is either going to be left empty or, as is strongly suspected, will be leased out to third parties as commercial office space – in direct competition with other similar businesses in the area.
The plans include several board rooms and kitchenettes and other facilities, very similar to those provided by similar businesses which lease out office space.
Further concessions exclude Eden Leisure from the need to add parking spaces as well as from a Traffic Impact Assessment and Environment Impact Assessment.
Conflicts of interest and connections
Further research by The Shift found several potential conflicts of interest in Eden’s application process.
While the MTA chairman Gavin Gulia and the Director of Product Development Kevin Fsadni communicated the Tourism Authority’s approval, Fsadni’s wife Mireille was one of three PA officials who voted in favour of the permit.
Mireille Fsadni did not declare a conflict of interest in the process leading up to the vote.
Also, one of the main shareholders of the Eden Leisure Group, Kevin De Cesare, has been a board member of the MTA for many years.
During the past years, De Cesare was also regularly appointed to several State entities, including Infrastructure Malta and Arms Ltd.
The Shift is also informed that before becoming Prime Minister, Robert Abela used to provide legal services to businesses connected to the shareholders of the Eden Leisure Group.
The Office of the Prime Minister refused to answer questions about whether Abela had discussed the controversial project with the De Cesares before the permit was issued.
The PA justified the permit. It said the two office floors “have no independent access” from the hotel development. A spokesman insisted with The Shift that these “are to be considered as part of the function of the hotel and are an ancillary use to the hotel’s operation”.
The spokesman did not reply to questions about whether any other development considered under the Height Limitation Adjustment policy was ever allowed by the PA to have floors for office space.
Tags
#Eden Leisure Group
#Gavin Gulia
#Kevin Fsadni
#Malta
#Malta Tourism Authority
#Pierre Farrugia
#Planning Authority
#Robert Abela
“Bazwar ftit minn hawn, u bazwar ftit minn hemm”.
Haven’t we heard that recommendation somewhere before? I don’t think it came from a seamstress being asked to carry out alterations to a lady’s evening gown.
Minn ghandu il flus ihawwel!!!
kull applikazzjoni li tisma ija mcappsa bil korruzzjoni!
The fruits of rampant free masonry – rock bottom values and principles, bartered for money.
Death will strip them all naked, and convert them into dry bones.
L-Awtorita tal-Ippjanar ghandha zewg tii ta’ ligijiet , wahda ghal tal-qalba bhal dawk ta’ Decesare u ohra ghan-nies li mghnadhomx vuci
U jien Gew ikejlu it terrazzin biex jara jekk hux xi ftit centimetri ikbar ghax mara komuni
Jew miljun hawn u miljun hemm ma taghmilx differenza
Another a blatant example of blatant bad governance.
This should be one of the many reasons, why people of goodwill should vote to kick out the Labour Party from governing our beloved Malta and Gozo in the forthcoming election.
The rule of law, equal opportunities for all and last but certainly not least the standard and quality of living in Malta.
The PL is no longer the backbone of the workers, but is complicit with developers that are responsible for the uglification of our Republic. Greed and money rules, not justice and the environmental ruin of Malta and Gozo.