Sliema residents object to a development application for a four-storey guesthouse and restaurant slated for Santa Marija Street, with NGOs Moviment Graffitti and Din L-Art Ħelwa expected to join the opposition in the coming days.
The application (PA/5294/23), submitted by Lisa Lupi with architect Malcolm Xuereb, proposes expanding a two-floor house into a four-storey, 20-bed guesthouse, including a restaurant on the ground floor and a basement level.
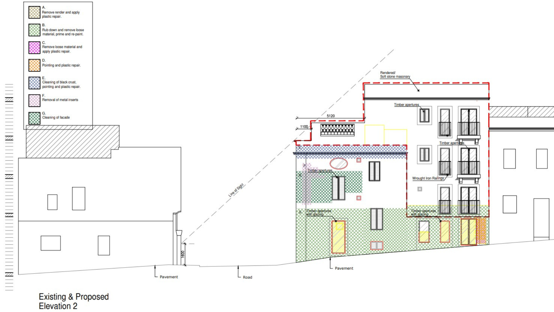
The construction, if approved, will take place at the corner of Santa Marija Street and Karmnu Street, an Urban Conservation Area designated for protecting buildings with traditional features through additional requirements and limitations on planning applications.
Residents have filed dozens of objections claiming that the development will jar with buildings on the rest of the street, creating an eyesore with the proposed businesses negatively impacting residents’ quality of life.

In their representation on the Planning Authority website, the residents also claimed the architect’s measurements quoted in the designs for the proposal were skewed or omitted for the proposal’s benefit.
Following questions from The Shift, NGO Moviment Graffitti’s André Callus confirmed they would object to the development, with a representation of the NGO’s justifications for opposition expected to be submitted soon.
NGO Din L-Art Ħelwa is also expected to submit representation objecting to the development, with DLĦ President Prof Alex Torpiano citing a breach in the height regulations as the main concern.
Several residents’ objections claimed that the proposal breaches Policy P4 of the DC15 Planning Regulations, which stipulates that proposed buildings in Urban Conservation Areas must be no taller than adjacent developments.
The residents claimed the applicant misrepresented the actual height of neighbouring buildings to allow the proposed building to “squeeze in” an additional fourth floor.
Residents’ objections also listed traffic concerns, citing the narrow Karmnu Street as an existing vehicle congestion point.
The proposal is still awaiting a Planning Authority case officer recommendation with objections to the development accepted on the PA website until 6 October.
Tags
#Din l-Art Helwa
#Lisa Lupi
#Malcolm Xuereb
#Malta
#Moviment Graffitti
#Sliema