This article is available in English.
Il-Prim Ministru Robert Abela u martu Lydia kisbu biċċa art għammiela kbira ħdejn il-farmhouse tagħhom fix-Xewkija Għawdex biex ikunu jistgħu jkabbru l-guesthouse li qed jipproponu. Dan ħareġ mill-pjanijiet il-ġodda li reġgħu ppreżentaw quddiem l-Awtorità tal-Ippjanar.
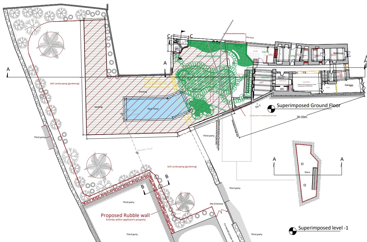
Il-pjanijiet li ppreżentat martu Lydia Abela jipproponu li jikkonvertu farmhouse residenzjali f’guesthouse bi tmien kmamar tas-sodda. Għalkemm fil-bidu nett, il-medda tal-art tal-guesthouse kienet xi 560 metru kwadru, issa bis-saħħa tal-art li xtraw maġenb il-farmhouse qed jipproponu proġett ta’ kważi 2,000 metru kwadru.
Sorsi qalu lil The Shift li s-sid oriġinali tal-art kien negozjant Għawdxi li ngħata direct order biex jipprovdi sodod f’dar tal-anzjani lill-gvern. Qalulna wkoll li għall-bidu ma kienx qed jaċċetta li jbigħ l-art lill-prim ministru u lil martu. Madankollu jidher li mbagħad kien hemm bidla tal-ħsieb għax l-aħħar applikazzjoni qed tikkonferma li Abela huma s-sidien tal-art kollha tal-proġett.
Mhuwiex magħruf kemm ħallsu lil Abela għal din il-biċċa art.

The Shift talab lill-kelliem tal-prim ministru Edward Montebello biex jikkonferma li Abela kienu xtraw l-art, jgħid kemm swiethom, mingħand min xtrawha, u meta sar l-iffirmar tal-kuntratt.
Hu wieġeb li l-applikazzjoni għall-permess hija pubblika, bħalma hu kull kuntratt tal-bejgħ tal-proprjetà.
Il-farmhouse oriġinali fix-Xewkija ilha proprjetà ta’ Abela mill-2012, iżda ħafna mix-xogħol il-kbir inbeda dan l-aħħar fis-sajf tal-2022.
Sas-sena l-oħra, il-koppja kien għadhom qed japplikaw mal-Awtorità tal-Ippjanar biex iwettqu bidliet strutturali fil-farmhouse ħalli jużawha bħala residenza tagħhom. Madankollu, wara xi żmien biddlu fehemthom u bdew japplikaw biex iżidu l-kmamar tas-sodda u jibnu pixxina fuq ġewwa. Dan kollu beda juri li r-residenza kienet se tintuża għal guesthouse allavolja xorta kienu qed japplikaw għal “permess residenzjali”.
Wara r-rappurtaġġ ta’ The Shift li jikxef dan kollu, aktar tard Lydia Abela ppreżentat applikazzjoni ġdida b’emendi li jbiddlu dan kollu, u li fiha tiddikjara li l-iskop tal-iżvilupp hu għal guesthouse.
The Shift kien irrapporta wkoll li filwaqt li l-aħħar applikazzjoni tagħhom għall-permess (PA1188/23) kienet għadha pendenti, il-kuntratturi Għawdxin Vella Brothers Ready Mix Ltd, magħrufin bħala Tal-Malla kienu diġà bdew iwettqu xi xogħlijiet strutturali.
Barra minn hekk, it-tabella li twaħħlet fuq il-post u li kienet tiddikjara numru tal-Awtorità tal-Ippjanar li qatt ma ntuża effettivament, kienet tneħħiet malli The Shift irrapporta li kien għaddej xi xogħol.
Meta The Shift kien xandar l-aħbar, il-kelliem ewlieni tal-prim ministru Edward Montebello kien ħareġ jattakka lil The Shift u sejjaħ ir-rapport “gidba”. Madankollu, dak ir-rapport issa qed jiġi kkonfermat.
Il-kuntrattur hu l-istess wieħed li l-gvern fdah bil-kostruzzjoni tal-proġett tal-Mużew fir-Rabat Għawdex, u li għalkemm il-gvern approva bidliet kbar fih permezz ta’ direct orders li jlaħħqu l-miljuni tal-ewro, il-proġett xorta waqa’ lura b’ħafna snin fl-iskeda tiegħu.
Il-perit tal-proġett ta’ Abela hu Joe Cassar, l-istess perit li kien involut fil-konkrit allegatament difettuż ta’ Skanska fil-proġett tal-Isptar Mater Dei.
Fl-2017, Abela kienu xtraw ukoll dar enormi fil-periferija taż-Żejtun, li tinsab fuq art ODZ (jiġifieri barra miż-żona tal-iżvilupp) għal €600,000 biss. Fl-istess żmien huma kienu konsulenti legali tal-Awtorità tal-Ippjanar bi ħlas inizjali ta’ €17,000 fix-xahar, u rnexxielhom jagħmlu l-kuntratt tal-bejgħ fi żmien ħamest ijiem minn meta l-Awtorità tal-Ippjanar approvat is-sanzjonar ta’ bosta illegalitajiet fuq dik l-art.
Skont il-permessi l-ġodda li ħarġet l-Awtorità tal-Ippjanar għal dik id-dar il-kbira taż-Żejtun, din se titwaqqa’ u minflokha se tinbena villa ġdida mdawra b’ġonna kbar.

Minkejja dan il-prezz evidentement baxx għax-xiri tal-proprjetà, il-Kummissarju tat-Taxxi ma talabx biex issir valwazzjoni indipendenti tal-proprjetà biex jiġi vverifikat jekk ġiex iddikjarat prezz orħos għall-fini ta’ taxxi.
Fl-aħħar dikjarazzjoni tal-assi tiegħu, il-prim ministru ddikjara li kien qed jaqla’ €60,000 fis-sena.
Tags
#Lydia Abela
#Prim Ministru Robert Abela
#Xewkija