A man from Xewkija, Gozo, who lives in a farmhouse next door to a property that the prime minister and his wife are turning into a boutique hotel, asked the court to intervene and stop ongoing works, accusing Robert and Lydia Abela of trying to build on his property.
Joseph Portelli, 74, filed an urgent court case at the Gozo Court to stop the prime minister and his wife from trying to take property that is not theirs. According to Portelli, Lydia Abela insists that a common wall dividing the two properties is hers and wants to dismantle it and build further, onto his property.

Records on the court’s public database show that Magistrate Brigitte Sultana has already ordered the works to stop temporarily until the Gozo court takes a final decision expected on 4 December.
Sources close to Abela’s contractors, Vella Brothers Ready Mix Ltd, better known as Tal-Malla, from Xewkija, told The Shift that Portelli first tried to settle the issue amicably without the need to resort to legal action. However, they said that Lydia Abela, who is frequently on site, did not give in, insisting the wall was hers.

Lydia’s boutique hotel
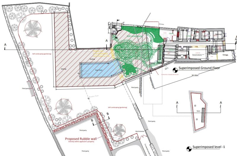
Situated in Xewkija’s Triq Mġarr ix-Xini, Robert and Lydia Abela acquired their Gozitan farmhouse in 2012 from a German couple. At the time, they forked out €268,000 for the 500-square-metre property.
Despite obtaining a development permit in 2012 to build a pool, they never did. After its five-year validity had elapsed, they applied for a permit renewal in 2017.
After becoming prime minister, Abela applied for and obtained a government grant through the Irrestawra Darek Scheme, reserved for residences. A permit was issued in 2021 to carry out the work with public money.
Then, the Abelas applied for an extension to turn it into an eight-bedroom ‘residence’. The application was withdrawn soon after The Shift revealed that the Abelas were using a residential application for a commercial development.
Application expenses related to commercial developments are usually higher.
In 2022 and 2023, through two separate deeds, the Abelas acquired fields abutting the back of their property, extending their farmhouse footprint by a further 1,500 square metres. They paid a total of €315,000 for the new acquisition.
At this point, in 2023, Lydia Abela filed a new planning application to turn the farmhouse into a guesthouse with eight double bedrooms, including a reception and lounge area, a breakfast room, a basement with a gym and wine cellar, a large outdoor pool, and surrounding landscaped gardens.
The permit, approved by the Planning Authority, also involves a significant extension to the building on the first floor.

The planned boutique hotel will have a capacity of 16 guests.
Recently, MHRA president Tony Zahra took a dig at the prime minister while commenting on the oversupply of tourist beds in Malta’s saturated market.
“We need to be careful; we can do better than this craze to build more and more rooms,” he said.
“Even the prime minister’s wife wants to build more rooms! What will happen is that we have a lot more supply, but not the demand. We must be careful,” Zahra said.
Tags
#court case
#farmhouse
#guesthouse
#hotel
#Joe Cassar
#Joseph Portelli
#Lydia Abela
#Robert Abela
#Xewkija
X arroganza!! Kemm ilni nghid! Din l craze fil propjeta huwa ghax l politici kollha business f dan s settur! Ezempju car hawn! Mela hi trid taghmel propjeta haddiehor taghha l lydia!
The usual PL attitude ” I can do what ever I like “
However strange the proposed enlargement of the couple’s Xewkija hideaway may be – resulting in an 8-bedroom boutique hotel – even allegedly at the expense of the adjacent property owners, I think the President of the MHRA should be the last person to admonish anyone to ‘be careful’ in creating additional tourist accommodation.
It wasn’t the ordinary citizen who was given the go-ahead to add two further storeys to his hotel some years ago, was it!
No ‘be careful’ admonition was pronounced by anyone at the time – as that would not have been heeded in any case, given the additional profits that the added rooms were envisaged to be providing!
The prime minister only listens to the other Joseph Portelli in fact he doesn’t just listen he acts on his orders?
The Abelas must be extremely rich. Forking out 3/4 of a million for this project so far. The farmhouse they bought for a measly ?700,000, if I’m correct. ?180,000 in the bank. A luxury yacht…life is good for the Abelas!!!????????
“A permit was issued in 2021 to carry out the work with PUBLIC money”
OINK, OINK! And the pigs get fatter!